Odkryj pełną ofertę!

Charakterystyka konstrukcji

Na konstrukcję domu stosowane jest drewno suszone oraz strugane o przekroju 195x45mm.

Do izolacji cieplnej domu używamy wełny skalnej firmy Rockwool 200mm, która układana w systemie krzyżowym eliminuje mostki termiczne.

Od strony zewnętrznej folia paroprzepuszczalna, ruszt instalacyjny elewacji, deska elewacyjna/blacha na rąbek.

Podłoga

Klient wykonuje płytę fundamentową lub stopy/pale fundamentowe w przypadku wybrania podłogi drewnianej.

Tylna część domu z oknami na całej powierzchni, przez które widać wnętrze domu

Konstrukcja 195x45mm

Wełna 200mm

Płyta OSB 18mm

Ściany

Przednia część domu, bez okien, z drzwiami wejściowymi, drewnianą ścianą i blaszanym dachem

Konstrukcja 195x45mm

Strop 220x55mm

Wełna 200mm

Folia paroprzepuszczalna

Ruszt elewacji

Płyta GK

Elewacja drewniana

Blacha na rąbek

Płyta OSB 12mm

Dach

Boczna, drewniana ściana domu bez okien z dachem z blachy

Krokwie 195x45mm

Blacha na rąbek

Wiatroizolacja

Kontrłata

Wełna skalana 200mm

Łata

Pozostałe elementy domu w stanie deweloperskim

Okna 3-szybowe PCV

Schody

Drzwi

Instalacja wod-kan

Instalacja elektryczna 30 punktów

Grzejnik elektryczny w łazience

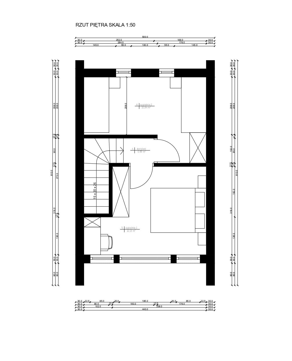
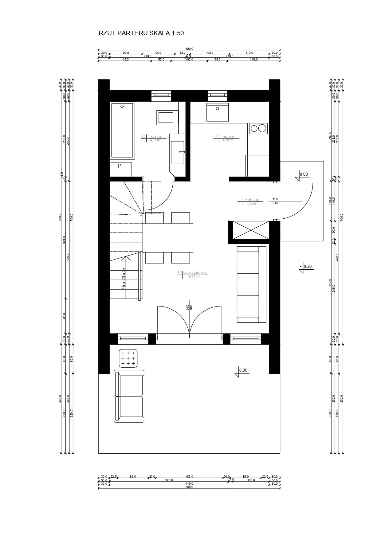
rysunek techniczny parteru rysunek techniczny parteru rysunek techniczny piętra

Skontaktuj się z nami

Nie zwlekaj, stwórzmy Twój wymarzony dom już dziś!